Dom parterowy 164 m2 | działka 970 m2 | garaż 2 auta | Komorowo

Dodano: 19 lutego 2026 17:50, Kategoria: Nieruchomości

Na sprzedaż nowy, przestronny dom parterowy o pow. 164,42 m2 (125,88 m2 użytkowej + 38,54 m2garaż) na działce 970 m2.

Lokalizacja: Komorowo, ul. Sadowa (gm. Ostrów Mazowiecka).

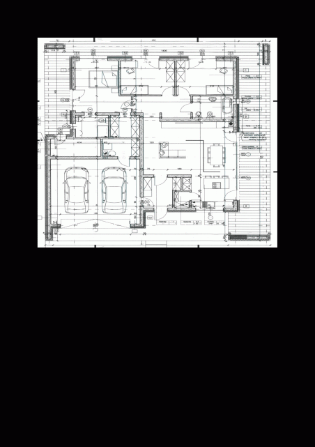
To funkcjonalny projekt z podziałem na 3 strefy: dzienną, nocną i techniczną ? tak, aby garaż i pomieszczenia techniczne nie przeszkadzały domownikom.

Najważniejsze atuty

Parter wygoda bez schodów

4 pokoje: 3 sypialnie + salon z kuchnią

Sypialnia master z prywatną łazienką i garderobą

Spiżarnia przy kuchni + pomieszczenie gospodarcze (idealne na pralnię)

Garaż 2-stanowiskowy ? dużo miejsca na auta i sprzęt

Projekt zgodny z WT 2021 ? bardzo dobra izolacyjność i energooszczędność

Spokojna, rodzinna okolica + dobra komunikacja

Układ domu

3 sypialnie (w tym master: łazienka + garderoba)
salon z kuchnią + spiżarnia
łazienka ogólna
pomieszczenie gospodarcze / techniczne
garaż na 2 samochody
Stan i wykonane prace (stan surowy otwarty)

hydroizolacja i izolacja termiczna fundamentów
rozprowadzona kanalizacja pozioma
kominy spalinowe i wentylacyjne
media: prąd i woda (przyłącza wykonane, woda doprowadzona do domu)
ogrodzenie panelowe z trzech stron (bez frontu)
teren wyrównany
Ogrzewanie projektowane:

ogrzewanie gazowe
przygotowanie pod pompę ciepła (C.W.U. powietrze?woda)
podłogówka w łazience i kuchni, pozostałe pomieszczenia ? grzejniki
Cena regularna: 599 000 zł

Zadzwoń / napisz ? chętnie udzielę szczegółów i umówię prezentację.

Informacja prawna: Ogłoszenie ma charakter informacyjny i nie stanowi oferty w rozumieniu art. 66 Kodeksu cywilnego.

Skontaktuj się z ogłoszeniodawcą

Adres
Komorowo ul.Sadowa
Telefon
665730170
Strona WWW
http://westia.pl

Katalog firm promowane

INVEST DOM Andrzej Buczyński

ul. Plac Księżnej Anny Mazowieckiej 4/2
07-300 Ostrów Mazowiecka

OKNA, DRZWI, PARAPETY, ROLETY, MOSKITIERY, ŻALUZJE

Tawerna Akropolis

ul. Małkińska 143
07-300 Ostrów Mazowiecka

Spróbuj greckiej kuchni !

Kwiaciarnia Orchidea

ul. Stefana Batorego 19
07-300 Ostrów Mazowiecka

Miejsce pełne kwiatów i wyjątkowych dekoracji.

Regulamin | Polityka prywatności | Reklama | Kontakt

UWAGA! Ta strona używa plików cookie i podobnych technologii m.in. w celach: świadczenia usług, dostosowywania stron do indywidualnych potrzeb użytkowników oraz w celach reklamowych i statystycznych. Korzystanie z witryny bez zmiany ustawień przeglądarki oznacza, że pliki cookie będą zapisywane w pamięci urzadzenia. W każdym momencie można zmienić te ustawienia. Szczegóły w Polityce Prywatności. [Zamknij]